Grundschule in
Hiddenhausen - Eilshausen
Erweiterung des
“offenen Ganztags” OGS
ca. 415 m² Nutzfläche
teilverklinkertes zweige-
schossiges Gebäude mit Metall-
dach in Stehfalzdeckung
2 Klassenräume im Erdgeschoß
mit Verwaltungsebene im OG
Baubeginn Juni 2017
Grundschule in
Hiddenhausen - Eilshausen
Erweiterung des
“offenen Ganztags” OGS
ca. 415 m² Nutzfläche
teilverklinkertes zweige-
schossiges Gebäude mit Metall-
dach in Stehfalzdeckung
2 Klassenräume im Erdgeschoß
mit Verwaltungsebene im OG
Baubeginn Juni 2017
ev. Bekenntnisschule
Hiddenhausen - Sundern
Erweiterung des
“offenen Ganztags” OGS
Anbau mit ca. 2.1oo m³
an zwei Stellen des
vorhandenen Schulgebäudes
ca. 75 m² Mensa eingeschossig
ca. 31o m² Klassentrakt und
Verwaltungsebene
Umsetzung des umfangreichen
Brandschutzkonzeptes
Baubeginn August 2017
notw
Dialysezentrum mgo im
Facharztzentrum am Klinikum
Ausbauarbeiten zur Praxis
ca. 1190 m² Nutzfläche
Übernahme des Rohbaus zum
Ausbau,aus ca. 225 m²
Arztpraxis und 965 m²
Nutzfläche
Dialysezentrum Lemgo im
Facharztzentrum am Klinikum
Ausbauarbeiten zur Praxis
ca. 1190 m² Nutzfläche
Übernahme des Rohbaus zum
eigenverantwortlichen Ausbau,
bestehend aus ca. 225 m²
Arztpraxis und 965 m²
Nutzflächen z
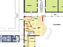
Grundschule in Hiddenhausen
Erweiterung des
“offenen Ganztags” OGS
Anbau der neuen Mensa
dreiseitig zwischen die vorhan-
denen Funktionsbereiche
Übernahme zwei verschiedener
Fußbodenhöhen sowie Über-
arbeitung der notwendigen
Rettungswege
ca. 17o m² Nutzfläche
ca. 925 m³ umbauter Raum
Baubeginn März 2017
Umbau und Modernisierung
Wohnhaus in Schweicheln
Entkernung der Räume im Erd-
und Obergeschoß
Änderung der vertikalen
Erschließung und Ver-
größerung der Wohnräume
Modernisierung der Bäder,
Fußböden und Installationen
Baubeginn Mai 2017
Grundschule Schweicheln-
Bermbeck
Neubau eines Mehrzweck-
raumes und Erweiterung des
“offenen Ganztags” OGS
neuer ebenerdiger und behin-
dertengerechter Zugang zum
gesamten Gebäude
ca. 12oo m³ Erweiterung OGS
ca.
920 m³ Mehrzweckraum
ca.
375 m² zusätzliche Nutz-
flächen der Schule
Baubeginn Mai 2017